Nowe Ekskluzywne Wille z Basenem w Los Alcazares
- €659.000
Ogólne
- Willa
- 3
- 3
- 118 m2
Opis
Nowe osiedle 12 ekskluzywnych, wolnostojących willi, każda z prywatnym basenem i solarium na dachu, położone zaledwie 150 m od pięknej plaży Los Narejos i zaledwie 2 minuty spacerem od tętniącego życiem pasa Rio Nalon z bogactwem barów i restauracji.
Domy z najwyższej półki, zbudowane według najwyższych standardów w jednej z najlepszych lokalizacji na Mar Menor.
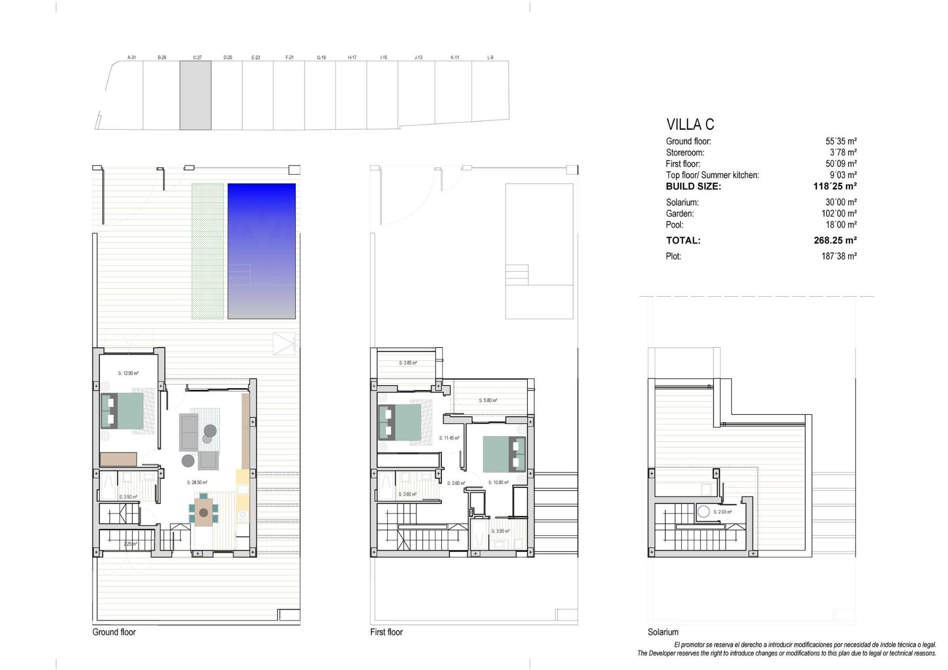
Wszystkie wille mają ponad 120 m2 powierzchni mieszkalnej plus prywatne ogrody o powierzchni ponad 100 m2, z parkingiem terenowym dostępnym na działce i prywatnym basenem o wymiarach 6 m x 3 m z platformą do opalania.
Wszystkie urządzenia AGD wliczone w cenę: lodówka z zamrażarką, piekarnik, kuchenka mikrofalowa, płyta ceramiczna, wyciąg, zmywarka, pralka i mini lodówka w letniej kuchni.
Wstępna instalacja klimatyzacji kanałowej w całym obiekcie.
Oświetlenie wewnętrzne i zewnętrzne, z wyłączeniem lamp ozdobnych.
Okiennice sterowane silnikiem.
Na dole znajduje się jasny salon-jadalnia z otwartą kuchnią, łazienka i dodatkowy pokój na dole o powierzchni 13 m2, który może być używany jako trzecia sypialnia, osobna jadalnia lub garaż; ten pokój będzie miał panoramiczne drzwi szklane otwierane na zewnątrz, które pozwolą na zaparkowanie samochodu w środku, jeśli będzie to konieczne (*chociaż ta wewnętrzna przestrzeń może być używana w dowolny sposób, jaki właściciele będą potrzebować i zostanie przygotowana jako sypialnia, zostanie zapisana jako garaż w aktach własności). Jest również zewnętrzne pomieszczenie gospodarcze i pompa basenowa na tylnym patio. Na pierwszym piętrze znajduje się sypialnia główna z łazienką, dwiema wbudowanymi szafami i bezpośrednim dostępem do balkonu, a także kolejna sypialnia dwuosobowa z wbudowanymi szafami i dostępem do balkonów. Trzecia rodzinna łazienka znajduje się również na pierwszym piętrze.
Schody w górę z pierwszego piętra prowadzą do prywatnego solarium na dachu z letnią kuchnią ze zlewem, blatem roboczym i szafką zawierającą mini lodówkę. Fantastyczne widoki z solarium, dzięki położeniu nad morzem.
Energooszczędna izolacja termiczna, a także wysoki poziom izolacji akustycznej. Kabiny prysznicowe z dwoma dostępnymi opcjami.
Gniazda telewizyjne i telefoniczne w salonie, sypialniach i solarium.
Drzwi wewnętrzne, stolarka i zabudowane szafy w kolorze białym.
Podwójne szyby z optymalną ochroną przeciwsłoneczną.
System ciepłej wody za pomocą elektrycznego, regulowanego bojlera i 1,5-kilowatowych paneli fotowoltaicznych.
Wstępna instalacja ładowarki samochodu elektrycznego.
Los Alcazares to popularne nadmorskie miasteczko, w którym można znaleźć sklepy, bary, restauracje, supermarkety, apteki, ośrodek zdrowia, postój taksówek i przystanki autobusowe.
Doskonałe połączenia komunikacyjne, z pobliską autostradą AP7.
Międzynarodowe lotnisko w Murcii jest oddalone o mniej niż pół godziny jazdy (40 km), a do lotniska w Alicante można dojechać w niecałą godzinę (93 km).
Prestiżowy ośrodek Roda Golf & Beach Resort z 18-dołkowym polem golfowym zaprojektowanym przez Dave’a Thomasa znajduje się zaledwie 2,5 km dalej.
Lokalizacja
Otwórz w Mapach Google-
Miasto: Los Alcazares
-
Wybrzeże: Costa Calida
-
Kraj: Hiszpania
Informacje
Zaktualizowano na 5 listopada, 2025 w 9:41 am-
ID nieruchomości PR-N8198
-
Cena €659.000
-
Powierzchnia 118 m2
-
Działka 187 m2
-
Sypialnie 3
-
Łazienki 3
-
Typ nieruchomości Willa
Kalkulator kredytowy
-
Wpłata własna
-
Loan Amount
-
Monthly Mortgage Payment
-
Podatek od nieruchomości
-
Ubezpieczenie domu
-
Monthly HOA Fees




















